Stránka 1 z 2
dorabka ohrevu vody-3zhavice
Napsal: 28 lis 2011, 20:34
od jjuriss
Ahojte chlapci! chcem sa opytat, na octavke nemam predhrev vody-ta priruba kde su 3 zhavice. mam tam len tu plastovu prirubu bez zhavicov/auto je z holanska takze tam to nedavali/. chcel by som to ale prerobit na tie zhavice, pozeral som completne priruby ale ked to porovnavam z tou plastovou tak sa mi zda ze su tam inaksie robene otvory/zial porovnavam to len z obrazkou na nete a to nieje nic moc/ preto sa chcem opytat ci s tym niema niekto skusenost a ci sa tam vymiena len kus za kus alebo sa tam musia kupovat aj ine hadice atd atd... dakujem za reakcie...
Napsal: 28 lis 2011, 20:48
od jurosdi
S tou prírubou asi problém nebude,ale pokial to chceš mat s origo ovládaním cez RJ motora ,tak si zisti či máš verziu softu v RJ,ktorá to podporuje. Samozrejme musíš namontovat 2x relé a kabeláž.
Napsal: 28 lis 2011, 20:50
od PavelSK
Ja by som sa chcel podobne spýtať ale ohladom Feldy 1,9D, či by tam šla dakde dorobiť táto prírubka na tri žhaviče bez dákeho velkého laborovania. Ovládanie si potom už doriešim manuálne..
Napsal: 28 lis 2011, 20:51
od jjuriss
riadenie to chcem urobit mimo riadiacky, cize natvrde cez rele a vypinac a budem si to spinat ja, jedna sa mi hlavn eo tie hadice, ci bude treba kupovat nejake nove alebo zapoasu tie stare atd.atd lebo ked porovnavam tie priruby aju inaksie vymyslene otvory na hadice
Napsal: 28 lis 2011, 21:02
od jurosdi
Rozdielna bude len hadica,ktorá vedie do kúrenia. Teraz tam máš priamu a pri prírube zo žhavičmi potrebuješ hadicu s kolenom.
Napsal: 28 lis 2011, 21:07
od jjuriss
super, to som potreboval vedeit... dakujem:)
Napsal: 28 lis 2011, 21:11
od jurosdi
..

Napsal: 29 lis 2011, 10:08
od dibarbora
Len s tym rucnym zapinanim opatrne, lebo RJ si to ovlada aj podla zatazenia alternatora, aby aj baterka dostala svoj pridel, aby sa ti nestalo, ze sice budes mat rychlo teplo, ale baterku budes nabijat raz do tyzdna

.
Napsal: 29 lis 2011, 11:04
od jjuriss
da sa najst niekde popis ako to riadiacka ovlada, popripadne ako to zapojit cez riadiacku?
Napsal: 29 lis 2011, 11:19
od dibarbora
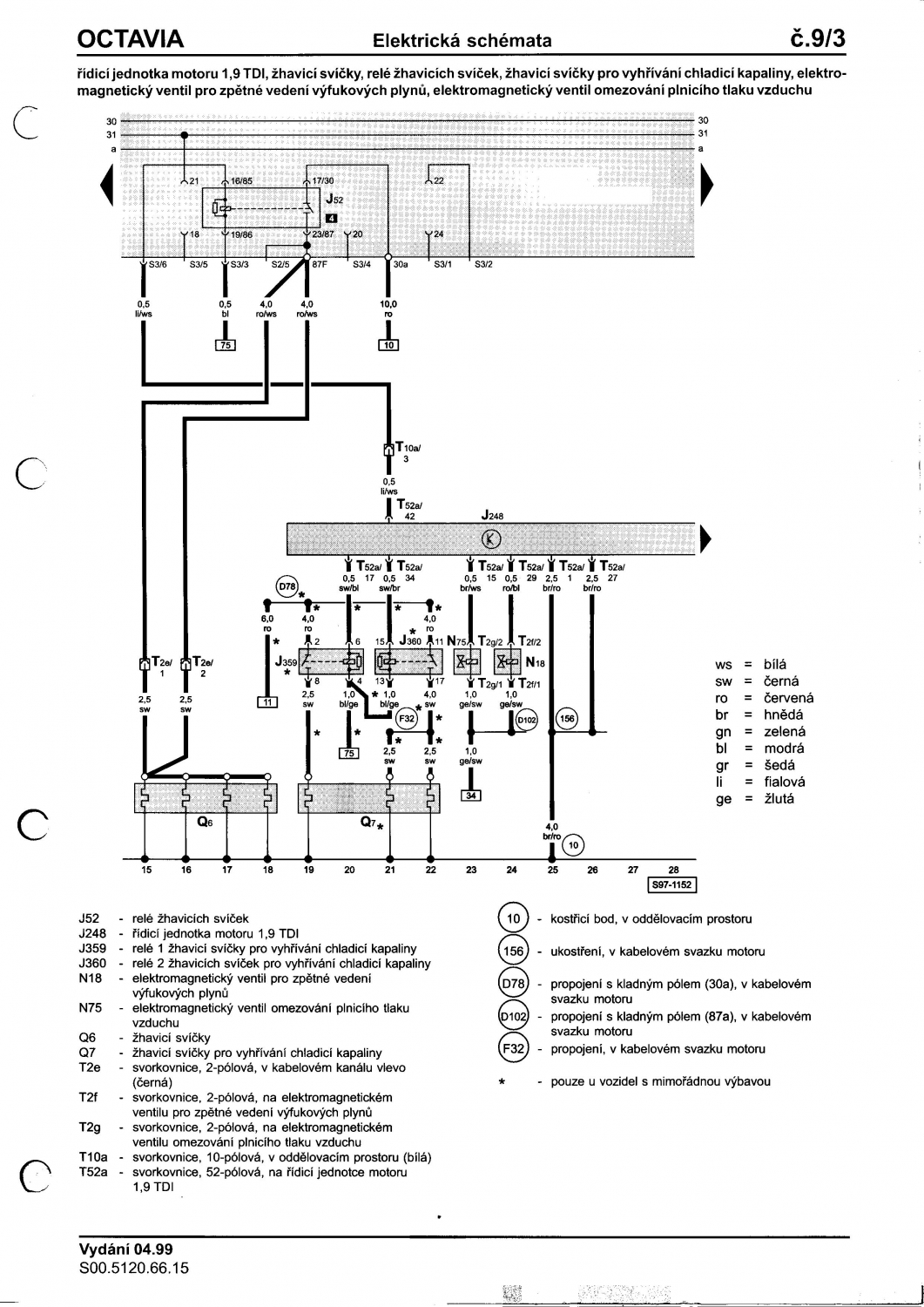
zakladny popis prihrevu je v tejto prirucke k riadeniu motora Bosh EDC.
http://www.ulozto.cz/9366991/bosch-elek ... -1-3-3-pdf
Pri pripadnom doplnani toho prihrevu si treba overit aj vykon alternatora. Mozno kecam, ale doteraz co som videl tak pri prihreve je altik 120A a bez prihrevu 90A.
Co sa tyka zapojenia elektriky, tak najlepsie je stiahnut si ELSU tam najdes vsetky potrebne schemy.
Napsal: 29 lis 2011, 11:27
od jjuriss
oki prestudujem ked sa sa eset ozvem. diki este raz
Napsal: 29 lis 2011, 13:46
od Juro M
PavelSK píše:Ja by som sa chcel podobne spýtať ale ohladom Feldy 1,9D, či by tam šla dakde dorobiť táto prírubka na tri žhaviče bez dákeho velkého laborovania. Ovládanie si potom už doriešim manuálne..
Tiez by ma to zaujimalo,ci sa to da urobit na Felde 1.9 D.
Napsal: 29 lis 2011, 14:11
od jjuriss
chlapci, myslite ze je jedno ktrou prirubu tam dam? jedna je z audi a druha by mala byt z octy... no ja by som povedal ze je to uplne to iste aj na to ze na audi je vyvod robeni zo spodu a na octe priamo....
audi

octa

Napsal: 02 čer 2020, 13:07
od jaro1
Vedel by niekto dať schému s presnim popisom aj pre laika na tú dorabku ohrevu vody? Octavia1 1,9 TDI 66kw. r.v. 1997. Ďakujem.

Napsal: 02 čer 2020, 19:43
od jaro1
Neviem kde zapojiť ten modro-žltej kábel z relatka označený číslom 75 v obdlzniku.